|
Design Portfolio - The Stormont
The
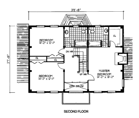
Stormont - Floor Plans
2,701 sq.ft. plus 1,097 loft for a total of 3,798 sq.ft.
Bay window breakfast nook plus separate dining room
Cathedral ceiling sunken study/den
3 bedrooms plus cathedral loft
3-car garage complete with cupola



|